Lokalizacja: Pojezierze Kaszubskie, Polska Data : 2018 Powierzchnia: 176,60 m² Inwestor: Prywatny
Szwajcaria Kaszubska – malowniczy rejon Pojezierza Kaszubskiego z rynnowymi jeziorami, zalesionymi wzgórzami, rozlokowanymi pomiędzy nimi małymi miejscowościami. Szczęśliwie, jest tu jeszcze miejsce na przyszłą zabudowę, która (wraz z jej lokatorami) może czerpać z upajających krajobrazów. Taka sposobność została wykorzystana do projektu przedmiotowego domu.
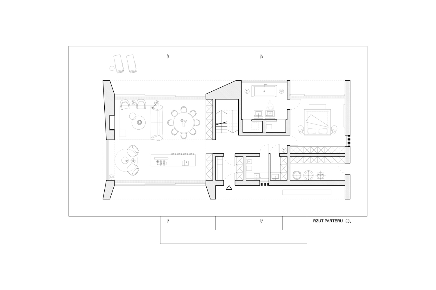
Typowy w kształcie i formie dla zabudowy tego regionu dom – parterowy, z użytkowym poddaszem, na rzucie prostokąta, przekryty symetrycznym dwuspadowym dachem – ulokowano na wzniesieniu. Budynek osadzono na betonowym tarasie, który na fragmentach delikatnie unosi się ponad terenem. Urozmaicenia prostej bryły stanowią podcienie, które akcentują przeszklenia; z kolei przeszklenia – panoramiczne okna – wchodzą w dialog z otoczeniem, maksymalizują wrażenie jedności z krajobrazem.
Zastosowano minimum szlachetnych materiałów – czarny łupek na dachu, elewację drewnianą z desek i lastryko (szary beton z jasnym kruszywem) na tarasie i podłogach w całym domu. Te same co na elewacji deski stanowią wykończenie wszystkich ścian, drzwi i frontów meblowych. Tę zasadę utrzymano w każdym z pomieszczeń parteru – w kuchni, jadalni i salonie oraz w głównej sypialni i łazience – w celu spotęgowania efektu zatarcia granic między wnętrzem a zewnętrzem.
Budynek będzie w pełni autonomiczny i wysoko energooszczędny – zaprojektowano pompy ciepła, instalację fotowoltaiczną i studnię.
Zespół projektowy: Oliwer Rasztawicki, Marta Zander
Wizualizacje: Filip Chorzelski & Filip Mętlewicz
Dom DH 2018
[info+]







