Lokalizacja: Warmińsko Mazurskie, Polska Data : 2020- Powierzchnia: 390 m²
Typowym elementem architektury mieszkalnej Warmii i Mazur jest dach rozprzestrzeniający się nad niższymi pomieszczeniami parteru, stosowane materiały, konstrukcje czy elementy wykończeniowe i zdobnicze o charakterystycznym detalu architektonicznym. Regularny rytm dachów o pięknej, ceglastej barwie, osadzone w niepowtarzalnej zieleni pomiędzy jeziorami, to jedna z niewątpliwie najbardziej rozpoznawalnych cech tego krajobrazu.
Poprzez dialog z tradycją zaprojektowano dom w nawiązaniu do zastanych elementów architektury regionu takich jak dach pokryty dachówką ceramiczną o ceglastej barwie, materiał naturalnego drewna na elewacjach oraz budynek na rzucie wydłużonego prostokąta o charakterystycznych proporcjach stodoły. Elementy te stały się punktem wyjściowym w poszukiwaniu rozwiązań kubaturowych i architektonicznych.
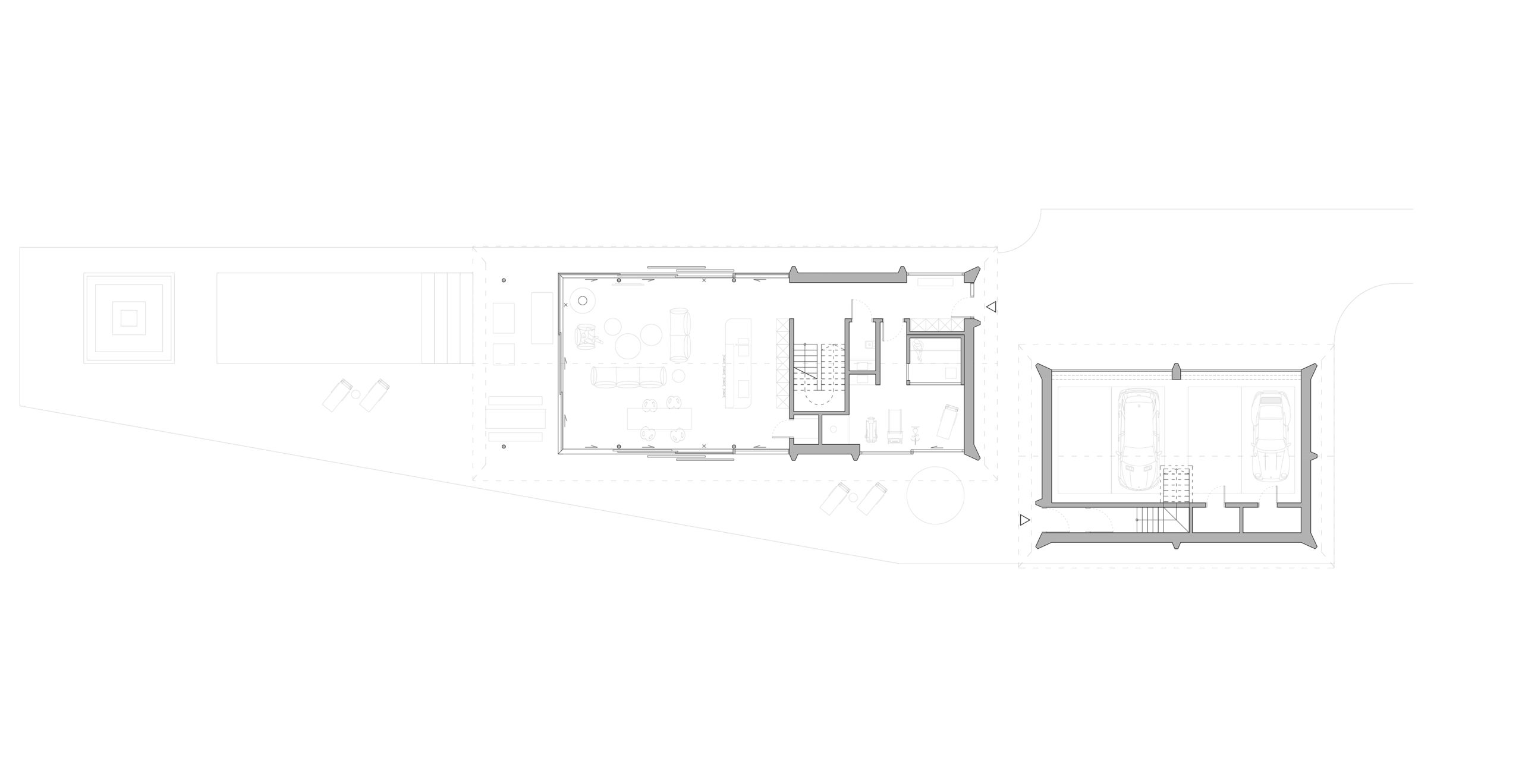
Projekt łączy ze sobą funkcje mieszkalne i gospodarcze. Funkcje te zostały rozdzielone tworząc dwa odrębne budynki zaprojektowane, jako parterowe niepodpiwniczone z poddaszem użytkowym. Parter budynku mieszkalnego to część dzienna, otwarta przestrzeń z widokiem na ogród i linię brzegową jeziora. Dodatkowo bryła budynku wzbogacona jest o podcień ze strefą wypoczynku wraz z uzupełniającym ją basenem. Piętro budynku mieszkalnego zwieńczone zostało otwartą loggią skierowaną na rozprzestrzeniający się krajobraz wielkich jezior. Budynek gospodarczy na poziomie parteru posiada pełne, wykończone tradycyjnymi elementami dekoracyjnymi elewacje z charakterystycznym deskowaniem w naturalnej kolorystyce.
Współczesny charakter budynku podkreślony został poprzez lokalizację dużych przeszkleń w parterze części mieszkalnej, po których otwarciu zanika granica strefy dziennej budynku, tworząc jedną przestrzeń wraz z otaczającym dom, naturalnym zagospodarowaniem terenu.
Zespół projektowy: Marek Kruk, Oliwer Rasztawicki, Monika Truskolawska, Tomasz Sroczyński.
Wizualizacje: DIG group
Dom KB 2020-
[info+]









