Lokalizacja: Olsztyn, Polska Data : 2021- Powierzchnia: 1000 m² Inwestor: Polyend
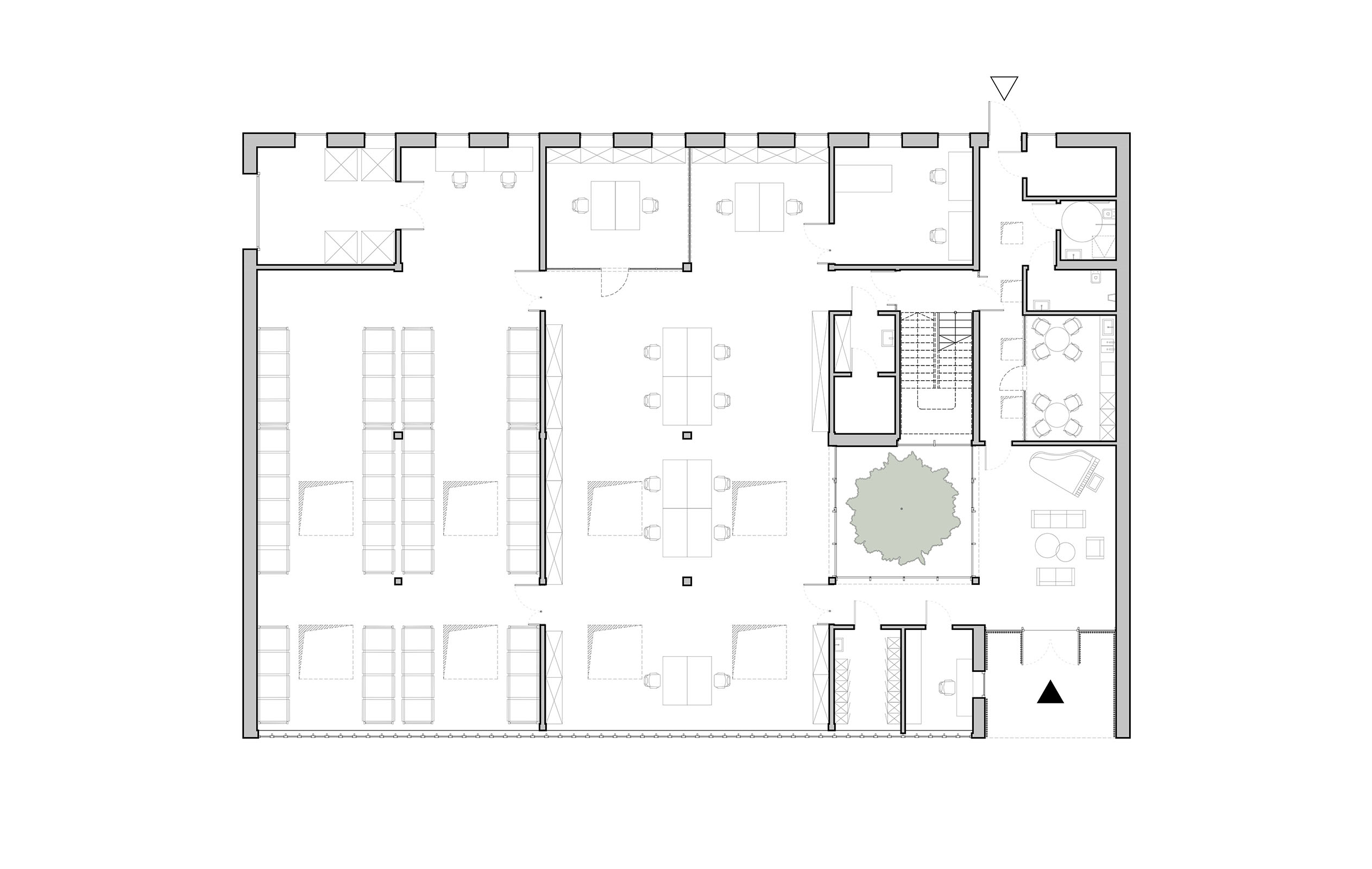
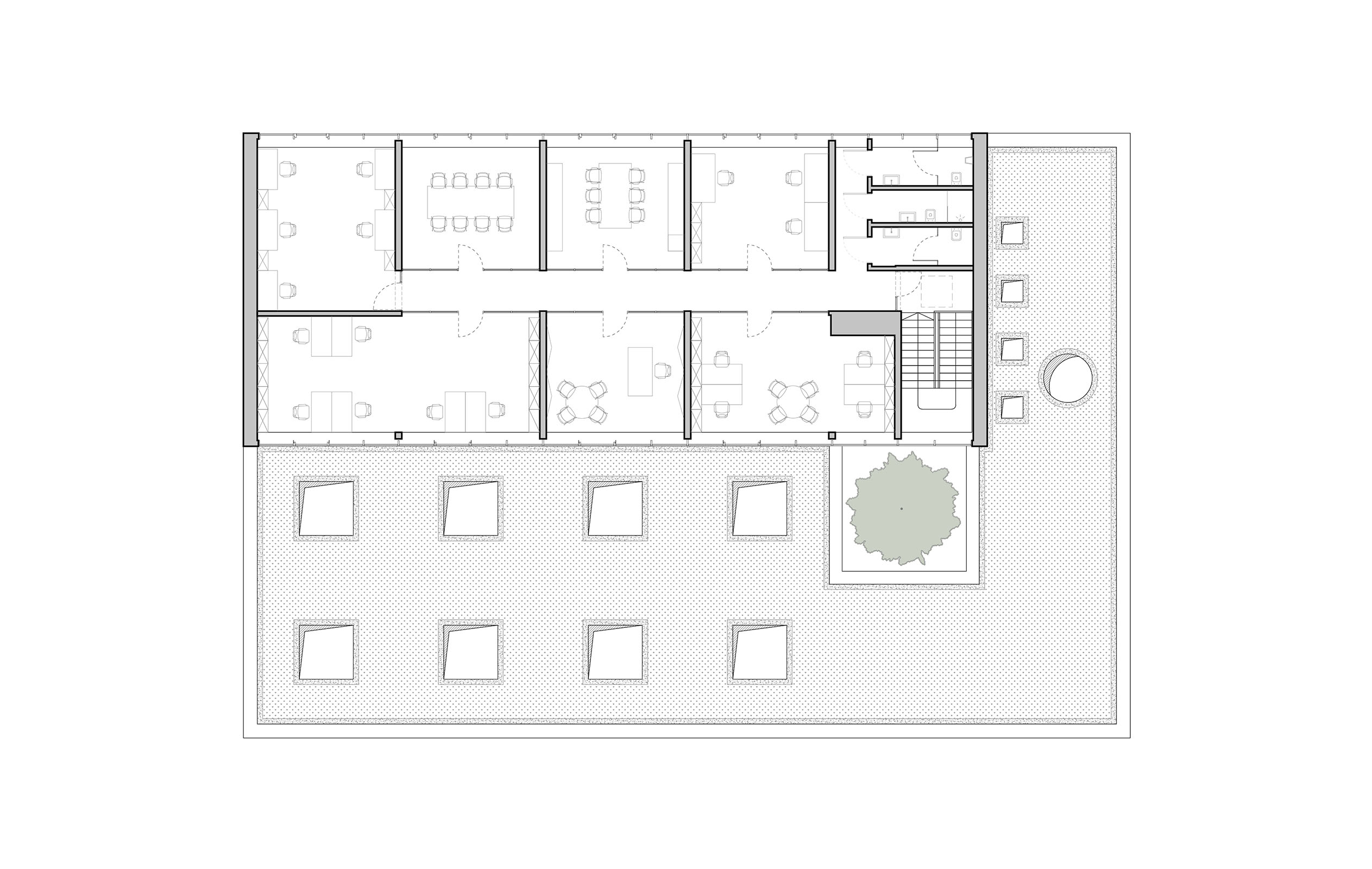
Tworząc projekt siedziby firmy Polyend stanęliśmy przed trudnym wyzwaniem stworzenia obiektu, który stanie się wizytówką marki. Postanowiliśmy wprost nawiązać do charakterystycznego designu produktów firmy, dzięki czemu otrzymaliśmy nowoczesną bryłę przykuwającą uwagę. Główną rolę gra elewacja frontowa składająca się z indywidualnie podświetlanych ram okien, pozwalających na wyświetlanie dowolnych układów, dzięki czemu jest ona pełna życia niezależnie od pory dnia. Dopełnieniem jest podcień wejściowy wykończony drewnem, które komponuje się ze stonowaną kolorystyką całości nawiązując jednocześnie do produktów marki. Wycofana w stosunku do obrysu parteru część biurowa posiada wielkoformatowe przeszklenia z widokiem na zielony dach. Na nim umieszczone zostały duże świetliki dachowe, zapewniające naturalne oświetlenie pomieszczeń. Zapewnia je także atrium, dzięki któremu wprowadziliśmy do wnętrza zieleń ożywiającą przestrzeń. Całość tworzy spójny obraz, który współgra z wizerunkiem firmy.
Zespół projektowy: Marek Kruk, Paweł Pacak, Tomasz Sroczyński.
Wizualizacje: DIG Group.
Polyend 2021-
[info+]













