Lokalizacja: Gdańsk, Polska Data : 2016 Powierzchnia: 3000 m²
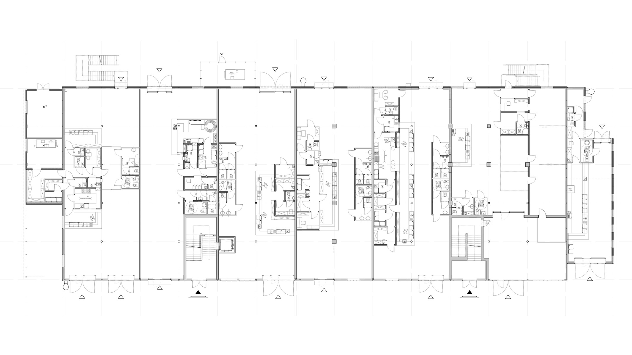
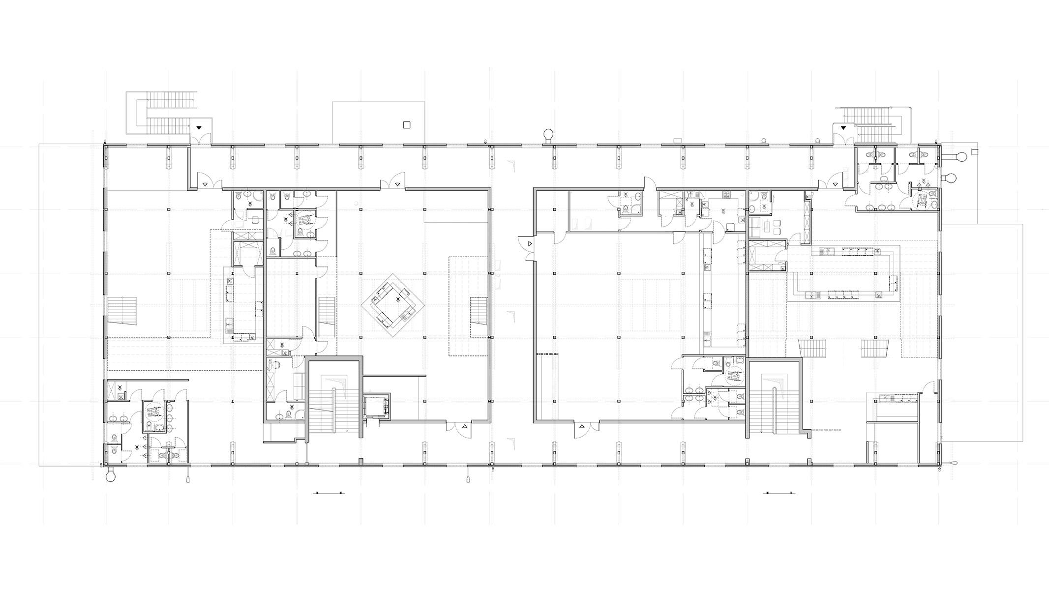
Przedmiotem opracowania był budynek Garaży Elektrowózków, który jest częścią dawnej Stoczni Schichaua i pierwotnie został zaprojektowany jako obiekt socjalno-magazynowy. Pierwsze piętro zajmowały szatnie z umywalniami, parter magazyny i warsztaty, w późniejszych czasach między innymi warsztat Lecha Wałęsy. Obiekt pochodzi z lat dwudziestych dziewiętnastego wieku i wpisany do rejestru zabytków. Ściana zewnętrzna posiada charakterystyczną konstrukcję stalową wypełnioną cegłą ceramiczną. W budynku wydzielonych zostało 11 odrębnie działających lokali gastronomicznych, biorąc pod uwagę zwiększenie wartości użytkowej budynku i uzyskanie odpowiedniego komfortu w celu spełnienia wymagań postawionych przez nową gastronomiczną funkcję budynku. Priorytetem było zachowanie w jak największym stopniu charakteru i wyrazu architektonicznego modernizowanego obiektu, a w szczególności elewacji i konstrukcji. Modernizacja budynku wiązała się z przystosowaniem istniejącego obiektu do nowych wymagań, przeciwpożarowych, sanitarnych oraz obowiązującego prawa budowlanego w celu spełniania innych niż dotąd funkcji użytkowych. Ze względu na pierwotne przeznaczenie tzn. garaże elektrowozów, na parterze budynku znajdują się wielkogabarytowe bramy wjazdowe, które zostały wykorzystane jako reprezentacyjne wejścia do lokali. Nowe wejścia zlokalizowane zostały w istniejącej siatce stalowej konstrukcji ścian i zaplanowane jako zupełnie nowe minimalistyczne bramy w kontraście do bram istniejących. Ten zabieg miał na celu szczere i nieinwazyjne wykonanie zmian w elewacji z wyraźnym zaznaczeniem, które wejścia do budynku zostały wykonane w późniejszym okresie niż planowana przebudowa budynku. Elewację budynku wraz z wszystkimi przebarwieniami pozostawiono w niezmienionym charakterze. Ściany jedynie oczyszczone za pomocą pary wodnej pod ciśnieniem tak, aby nie usunąć istniejących naleciałości oraz nawarstwionych przez lata powłok malarskich. Przed wejściami do klatek schodowych zaprojektowano zadaszenia w postaci stalowych blach na całą wysokość elewacji, spełniające one funkcję miejsca dla identyfikacji i reklam lokali z 1 piętra, w postaci wycięcia w blasze niezbędnych logotypów. W celu ujednolicenia reklam lokali sporządzona została wspólna pod charakterem, kolorystyką i wielkością identyfikacja dla całości założenia.
Zespół projektowy: Marek Kruk, Marzena Wytrykusz, Michał Kulczycki.
Garaże Elektrowózków 2016
[info+]










