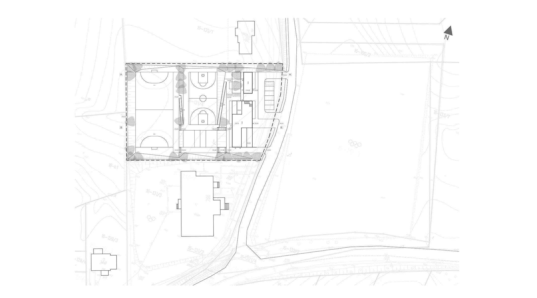
Lokalizacja: Dywity, Polska Data : 2014 Powierzchnia: 400 m²
Podstawowym założeniem architektoniczno-urbanistycznym było wykreowanie dwóch odrębnych obiektów, obiektu podstawowego świetlicy oraz obiektu zaplecza szatniowo-sanitarnego dla drużyn sportowych. Celem było uzyskanie charakterystycznego obiektu, przy wykorzystaniu form budownictwa wiejskiego-stosunkowo prostej bryły o jednoznacznym współczesnym charakterze bez nadmiernej stylizacji. Strop parterowego obiektu stanowi taras widokowy, z którego można będzie obserwować zarówno boisko istniejące, jak i boiska przewidywane do realizacji w przyszłości. Projekt przewidywał realizację projektowanych obiektów metodami tradycyjnymi. Jedynym elementem odbiegającym od tradycyjnego budownictwa jednorodzinnego jest materiał zewnętrzny pokrywający zarówno dachy, jak i płaszczyzny elewacji w postaci drewnianych listew decydujący o architekturze i indywidualnym odbiorze w przestrzeni tego założenia.
Zespół projektowy: Marek Kruk, Marzena Wytrykusz, Adrian Mania (Studiomania).
Świetlica Wiejska 2014
[info+]











