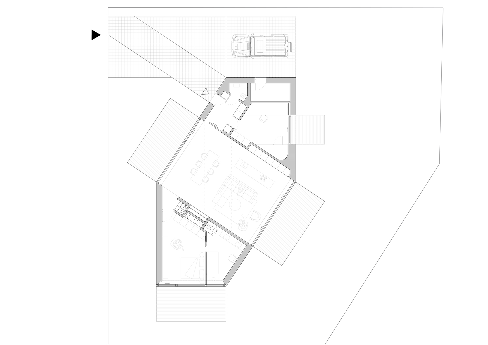
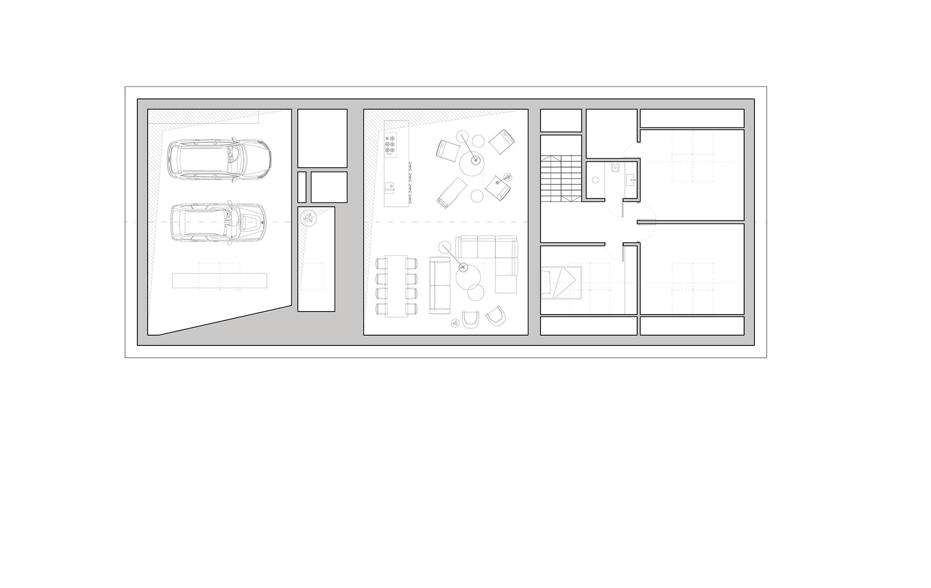
Dom MB 2026-

[info+]

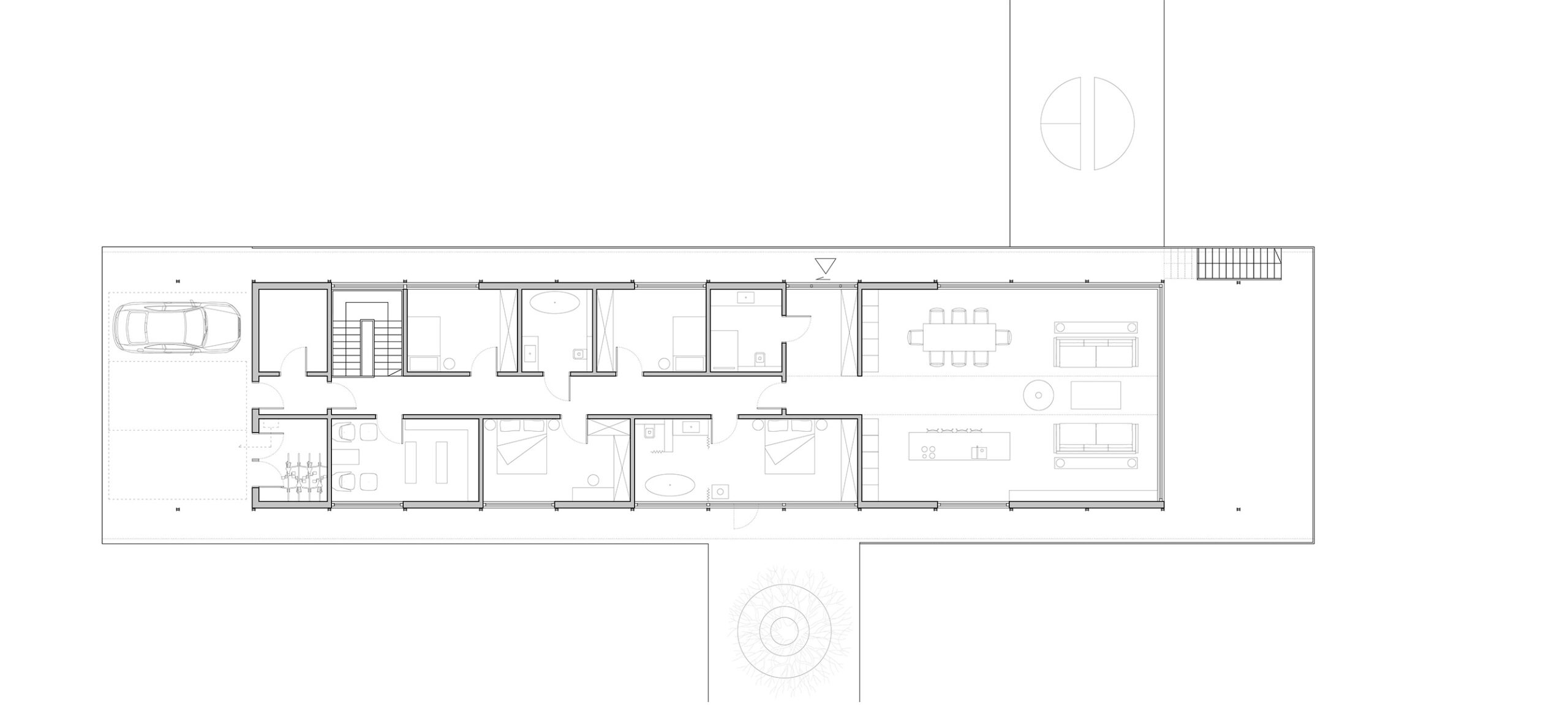
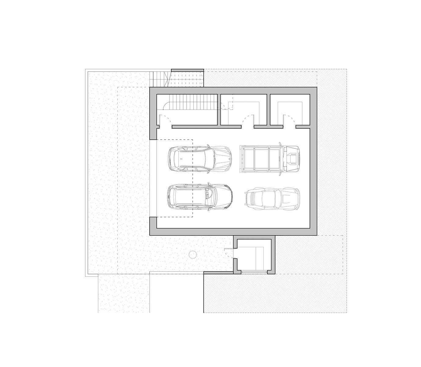
Dom AT 2025-

[info+]

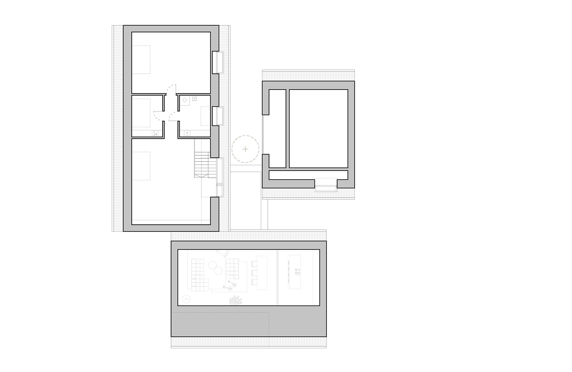
Dom 2-EM 2025

[info+]

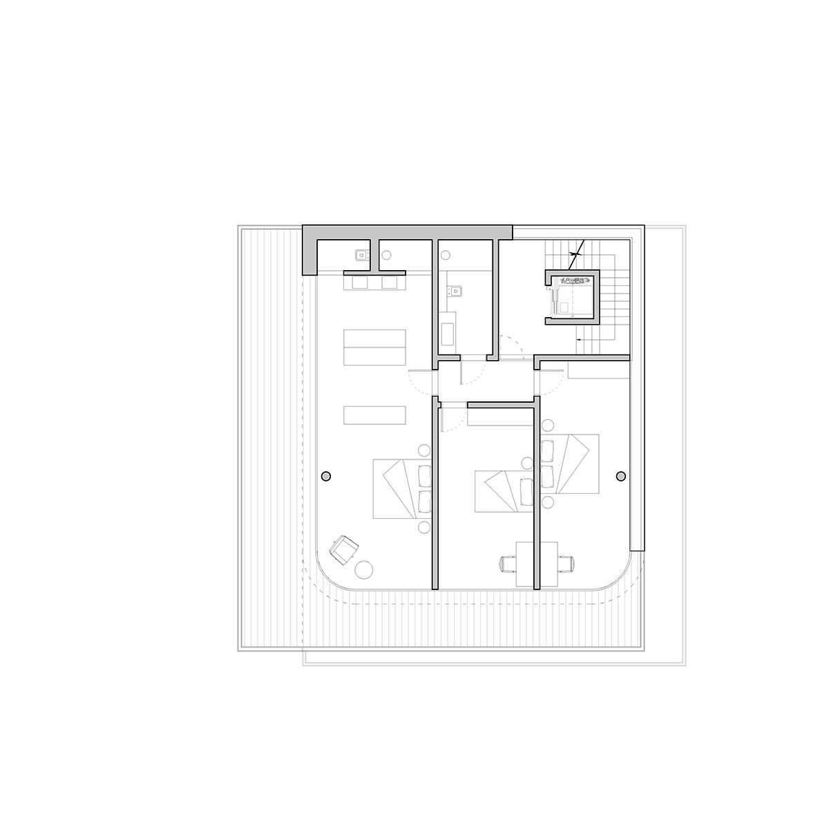
Dom OM II 2025

[info+]

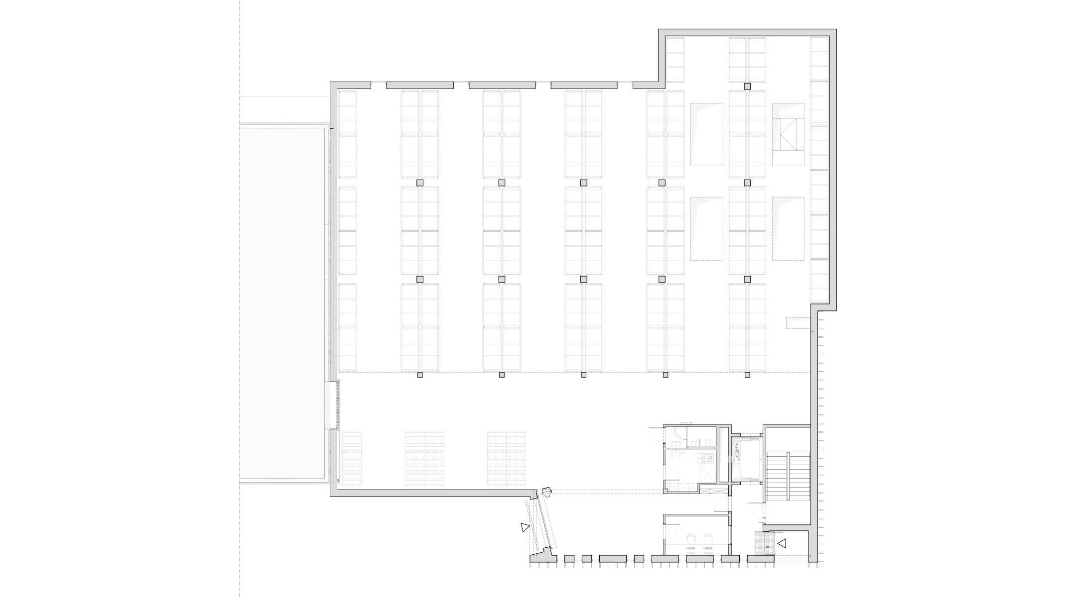
Polyend 2024

[info+]

Polyend interior 2025

[info+]

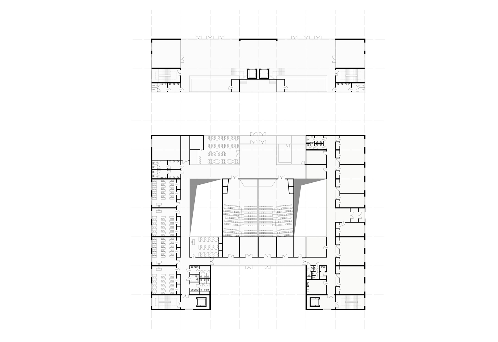
Łeba -budynek hotelowo-usługowy 2019 - ...

[info+]

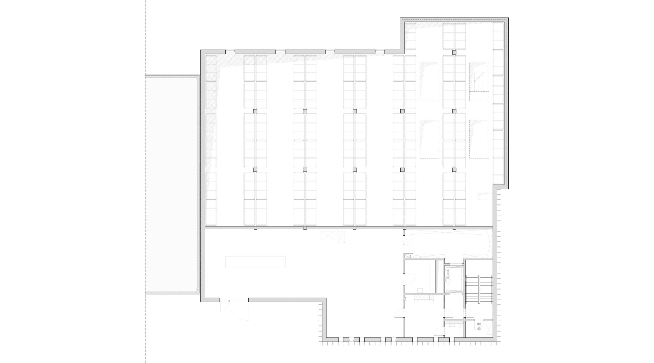
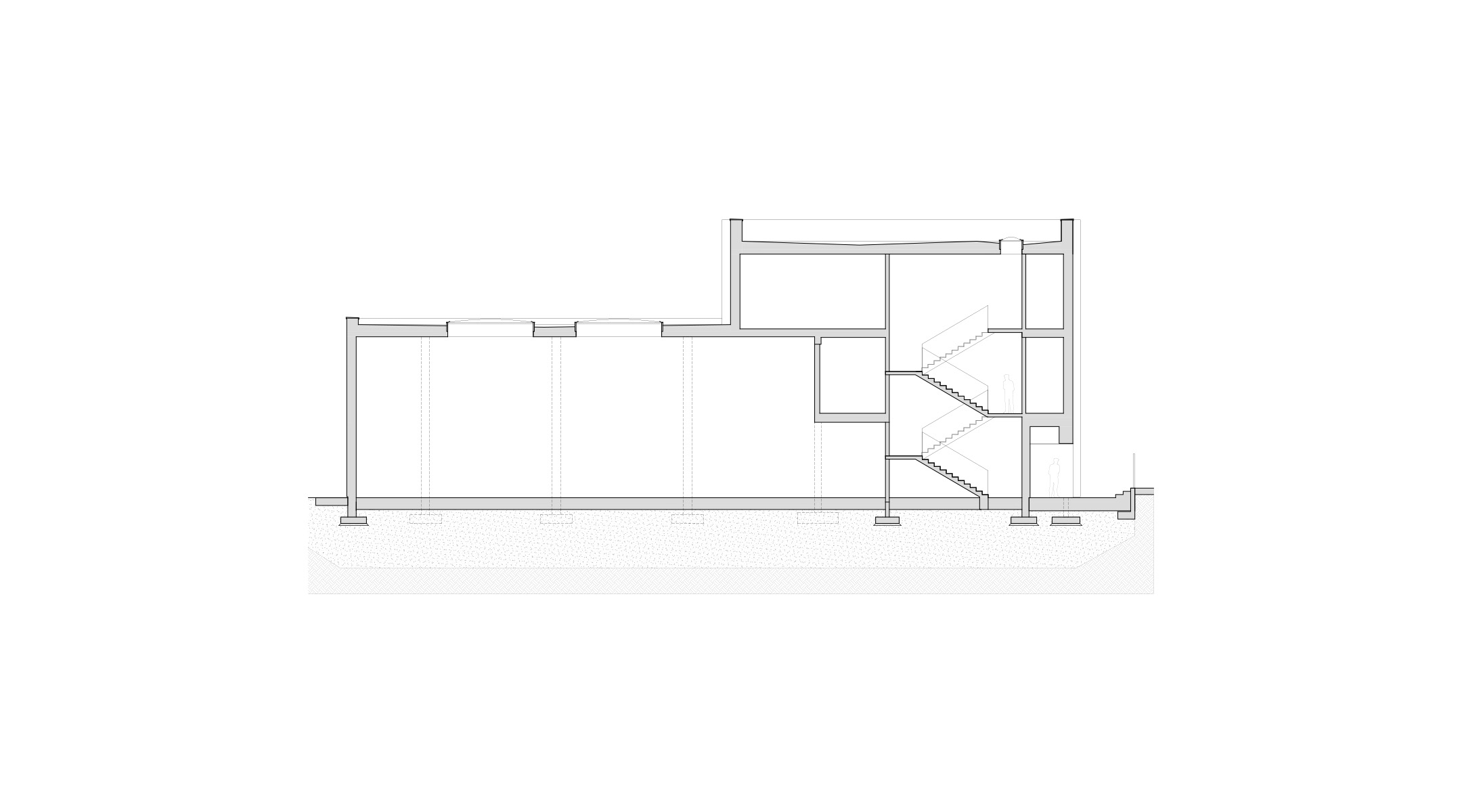
Lokalizacja: Łeba, Polska     Data : Projekt 2017 – 2021.  Realizacja 2019 – …    Powierzchnia: 2000 m²

Budynek hotelowo-usługowy zlokalizowany na nadmorskiej działce w Łebie.  Głównym założeniem było stworzenie obu obiektów usługowych w formie zabudowy atrialnej z otwartym patio skupiającym wokół wszystkie usługi, tworząc tym samym ogólnodostępny plac  Zabudowa została otwarta w taki sposób, aby uwzględnić główne kierunki ruchu pieszego w stronę dwóch wyjść na plażę znajdujących się na działce. Kolejnym krokiem w kształtowaniu zabudowy było rozbicie rzutu na mniejsze moduły tak, aby całość wpisała się w gęstą siatkę istniejących drzew i nie przysłania wydmy oddzielającej działkę od plaży, co stanowi niewątpliwy atut działki. Jednym z głównych priorytetów było stworzenie formy nowoczesnej nawiązującej do tradycyjnej architektury regionu. Kondygnacja przyziemia nawiązująca do konstrukcji ryglowej oraz kondygnacja piętra wykończona czarnym drewnem w układzie pionowym odnoszą się do typowej architektury regionalnej. Nie są to jednak nawiązania bezpośrednie, język architektoniczny jest nowoczesną interpretacją formy tradycyjnej bez bezpośredniego naśladownictwa. Nowoczesne, wielkoformatowe rozwierne przeszklenia otwierają widoki na otaczającą zieleń i zacierają granicę pomiędzy wnętrzem a otoczeniem, dając wrażenie ciągłego przebywania w nadmorskiej naturze…

Współpraca autorska: Jakub Piórkowski (PB Studio).
Zdjęcia: Fotomohito.

Willa R2 2023

[info+]

Dom MP II 2023

[info+]

Pole Golfowe 2023

[info+]

Lokalizacja: Harsz, Warmińsko-Mazurskie, Polska     Data : 2023     Powierzchnia: 5000 m²     Konkurs architektoniczny

Inspiracją dla zaproponowanej koncepcji strzelnicy golfowej wraz z budynkiem klubowym, administracyjno – gospodarczym oraz parkiem maszynowym była tradycyjna, warmińsko-mazurska architektura drewniana, dla której charakterystyczne są dwuspadowe dachy pokryte dachówką ceramiczną oraz podcienia wsparte na słupach opartych na regularnym rozstawie osi. Teren opracowania położony jest wśród łąk i lasów, którego istotnym elementem jest istniejąca zieleń wysoka, stanowiąca o walorach wizualnych i przyrodniczych miejsca. Całe założenie projektowe zostało oparte na pierścieniu, który łączy ze sobą wszystkie funkcje w jeden spójny wizualnie oraz funkcjonalnie kompleks. Mając to na uwadze, zaproponowany został pierścieniowy układ kompleksu oparty na powtarzalnej prefabrykowanej konstrukcji drewnianej, który zapewnia niezwykłą elastyczność funkcjonalną. W zależności od potrzeb każdy z budynków może zostać zmniejszony lub powiększony o kolejny segment przy jednoczesnym zachowaniu harmonijnej urbanistyki założenia. Pierścieniowy układ gwarantuje odwiedzającym prywatność w swoim wnętrzu, jednocześnie zapewnia szeroki widok na otaczającą przyrodę oraz pole golfowe. Komunikacja jest oparta na okręgu, dzięki czemu poruszanie się między poszczególnymi obiektami jest proste i intuicyjne. Naturalna okładzina elewacji wpisuje się w charakter miejsca, nawiązując dialog z otaczającą przyrodą. Głównym założeniem było zapewnienie uniwersalności funkcjonalnej i bezkolizyjności użytkowania obiektów poprzez rozdzielenie funkcji na osobne bloki. Budynek klubowy wyróżnia się spośród pozostałych swoją skalą, a także zadaszonym podjazdem umożliwiający obsługę przyjeżdżających gości…

 

Zespół projektowy: Marek Kruk, Paweł Pacak, Tomasz Sroczyński.

Wizualizacje: DIG Group.

Dom DP 2022-

[info+]

Lokalizacja: Pomorskie, Polska     Data : 2022-    Powierzchnia: 250 m²

Projekt rozbudowy z przebudową istniejącego budynku mieszkalnego jednorodzinnego. Budynek znajduje się na obszarze, gdzie dominuje funkcja mieszkaniowa. Otoczenie posiada zróżnicowaną strukturę przestrzenną z dużym udziałem zabytkowej zabudowy jednorodzinnej z I połowy XX wieku, która została wskazana do ochrony w projektowanym Miejscowym Planie Zagospodarowania Przestrzennego. Obiekt po zakładanej rozbudowie i przebudowie będzie przedłużeniem historycznego domu, w oczywisty sposób nawiązującą nie tylko do zastanego budynku, ale także budynków sąsiednich. Założenia projektowe, co do istniejącego budynku dotyczą zachowania formy bryły, w tym kąta nachylenia dachu stromego, charakterystycznego cokołu o innej strukturze materiałowej, ryzalitu wejściowego, wielkości otworów okiennych oraz tarasu od strony ogrodu.

Nowo projektowana rozbudowa jest przedłużeniem istniejącej formy, która pozwoli na stworzenie dodatkowej przestrzeni niezbędnej do przystosowania budynku do obecnych standardów mieszkaniowych. Aby zwiększyć powierzchnię użytkową obiektu planowana jest rozbudowa od strony ogrodu, dzięki czemu linia zabudowy od strony głównej ulicy zostanie niezmieniona. Zachowany został kąt nachylenia dachu z jego charakterystycznym załamaniem w 1/5 wysokości. Projekt przewiduje również stworzenie nowego tarasu, nawiązującego do istniejącego, ze schodami zejściowymi do ogrodu. Zachowane zostanie istniejące zróżnicowanie materiałów wykończeniowych elewacji oraz cokołu. Wykończeniem istniejącej bryły będzie tynk położony na ścianach i cokole całego obiektu. Cześć parterowa nowo projektowanej rozbudowy obłożona jest cegłą ceramiczną o kolorystyce zbliżonej do istniejącego pokrycia dachu, piętro poryte jest naturalnym kolorem tytan cynku. Cała forma obiektu, wpasowana jest w istniejącą strukturę zabudowań i tożsamość miejsca, dostosowana do charakteru istniejącej zabudowy i zagospodarowania okolicznych terenów.

 

Zespół projektowy: Marek Kruk,  Tomasz Sroczyński, Paweł Pacak.

Image: DIG Group.

BWS 2022-

[info+]

Dom AM 2022-

[info+]

Dom KT 2021-

[info+]

Dom 2xOM 2022-

[info+]

Dom DK 2021-

[info+]

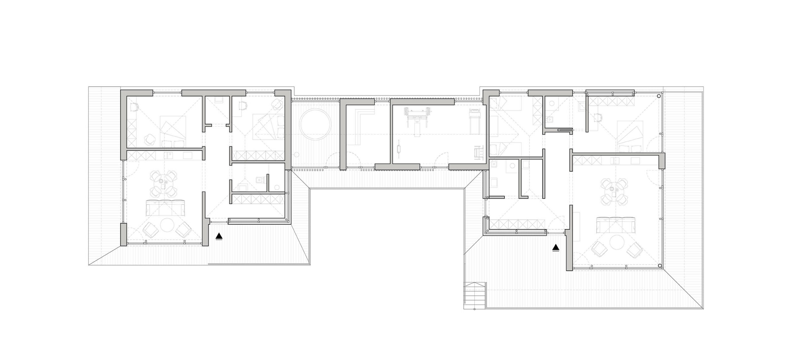
Lokalizacja: Pomorskie, Polska     Data : 2021-     Powierzchnia: 680 m²

Wśród podmiejskiej, niskiej zabudowy jednorodzinnej zaprojektowaliśmy dom, który ma stać się zieloną enklawą dla inwestorów. Układ budynków jest wynikową analizy planu miejscowego, który zakładał możliwość wybudowania domu składającego się z kilku brył. Istniejące drzewa zainspirowały nas do stworzenia obiektu stonowanego, lecz posiadającego swój indywidualny charakter. Wykorzystując ciemnobrązową cegłę oraz dachówkę w tym samym odcieniu chcieliśmy sprawić, że budynek niejako stanie się elementem otoczenia i nawiąże z nim dialog. Duże otwory i wycięcia podkreślają minimalizm domu i dodają całości lekkości, a szerokie przeszklenia pozwalają podziwiać otaczającą naturę z każdego miejsca.

Układ trzech brył nie tylko powoduje, że wejście jest wyraźnie zaakcentowane, ale także pozwolił na lepsze zaaranżowanie wnętrza. Dzięki takiemu ułożeniu każda z części zawiera inną funkcję, a strefa dzienna została oddzielona od strefy prywatnej. W projekcie staraliśmy się dopasować układ funkcjonalny do trybu życia domowników, stąd sypialnie doświetlone są od strony zachodniej, a salon posiada narożne przeszklenie z widokiem na południe oraz zachód, które po rozsunięciu umożliwia wyjście na duży taras. Jest on częściowo zadaszony, co pozwoli na korzystanie z uroków działki przez cały rok.

 

Zespół projektowy: Oliwer Rasztawicki, Marek Kruk, Adrian Mania, Tomasz Sroczyński, Paweł Pacak.

Wizualizacje: DIG Group.

Polyend 2021-

[info+]

Dom MG 2021-

[info+]

Lokalizacja: Zachodnio pomorskie, Polska     Data : 2021-     Powierzchnia: 220 m²

Drewniana elewacja, dach kryty strzechą, a przede wszystkim podstawa o kształcie długiego i stosunkowo wąskiego prostokąta.  Ten nietypowy dom powstanie na działce znajdującej się nieopodal Szczecinka na Pomorzu Zachodnim. To region wyjątkowo obfity w lasy i zwierzynę. Słynie z pięknych pojezierzy i parków narodowych, m.in. Drawieńskiego Parku Narodowego. I właśnie na takim terenie znajduje się kilkuhektarowa działka. Jej centralnym punktem jest wzgórze z którego rozciąga się widok na łąkę, dwa stawy i granicę lasu pełnego jeleni, saren, dzików. Do najbliższych domostw jest kilka kilometrów. Projekt zakłada wydobycie atutów z bezpośredniego otoczenia i zamiast tworzyć wobec niego barierę i izolację – w maksymalny sposób zbliżyć mieszkańców domu do otaczającej natury. W ten sposób powstał bardzo nietypowy kształt domu – jego podstawę stanowi prostokąt o szerokości 6,0 m i długości 40 metrów. Na pierwszy rzut oka można porównać to do proporcji wagonu albo statku. O ile jednak w przypadku ruchomych obiektów o ich kształcie decydują czynniki aerodynamiczne i nautyczne to w przypadku domu mentalne, funkcjonalne i oczywiście estetyczne. W tym pierwszym przypadku chodzi o jak największe połączenie z naturą. Dłuższe boki ustawione są na północ i południe. Część południową wieńczy sypialnia, a północną garaż na dwa samochody. To oznacza, że cała przestrzeń dzienna będzie doświetlona naturalnym światłem, co więcej dzięki wąskiemu kształtowi – z salonu będzie można podziwiać zarówno wschód jak i zachód słońca. Dom będzie posiadać aż trzy tarasy. Tym samym projektanci postawili na to, by do minimum ograniczyć bariery pomiędzy wnętrzem, a dzikim otoczeniem. Istotna jest też funkcjonalność. Dzięki kształtowi udało się odseparować część prywatną właścicieli – złożoną z sypialni, garderoby, łazienki i gabinetu od gościnnej. Pomiędzy nimi znajduje się salon i kuchnia. Pokój gościnny wraz z sauną znajduje się po przeciwnej stronie. Tym samym zarówno gospodarze, jak i goście zyskują potrzebną intymność. W projekcie zastosowano jak najwięcej naturalnych materiałów. Dach pokryty jest strzechą, do elewacji zostanie użyta opalana deska. Nietypowy kształt domu dopełnia jego podstawa, która zostanie zbudowana na betonowej płycie, a jej południowa część – z racji spadku terenu – stanie na stalowych podporach. Tam, mieścić się będzie taras wychodzący wprost z sypialni gospodarzy. Idealne miejsce na południową kąpiel w słońcu z widokiem na las.

 

Zespół projektowy: Marek Kruk, Oliwer Rasztawicki, Adrian Mania.

Wizualizacje: DIG Group,  Tekst: Michał Stankiewicz

Dom MM II 2021-

[info+]

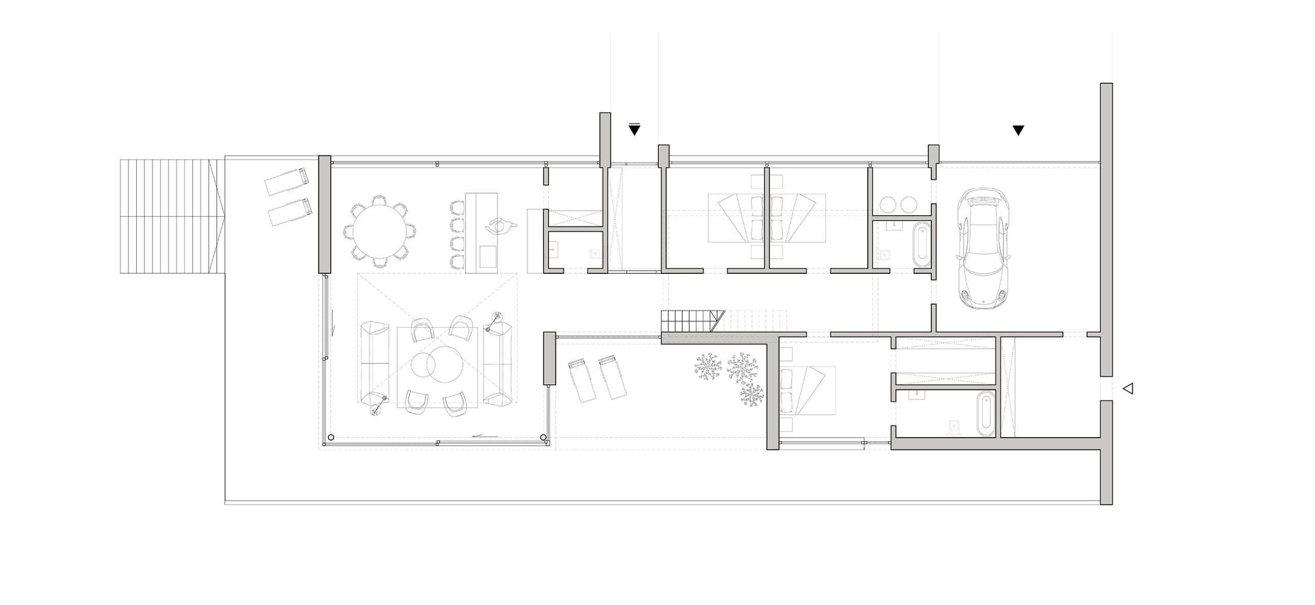
Lokalizacja: Pomorskie, Polska     Data : 2021-     Powierzchnia: 300 m²

W okolicach Kartuz, pełnych szeroko rozciągających się polan i jezior, zaprojektowano dom o prostej bryle nawiązującej do okolicznych zabudowań i komponującej się z naturą. Zbocze, na którym zlokalizowano budynek zainspirowało do stworzenia obiektu wpisanego w teren i niejako narzuciło układ funkcjonalny. Wykorzystując spadek po przekątnej działki o różnicy wysokości terenu równej jednej kondygnacji, garaż i pomieszczenia gospodarcze zostały schowane w skarpie i przykryte dodatkowo żelbetową płytą, stanowiącą bazę domu oraz taras zapewniający niesamowity widok na jezioro, które znajduje się raptem kilkadziesiąt metrów od budynku. W ten sposób zminimalizowano niezbędną ingerencję w naturalne ukształtowanie terenu, a dom nawiązał dialog z otoczeniem. Elewacja obiektu wykończona naturalnym materiałem jakim jest drewno, posiada widoczne podziały poziome kondygnacji. Wycięcia na przeszklenia, wejście do budynku, taras i loggię zostały potraktowane jak negatyw / niczym wycięcia w pniu drzewa i są obłożone jasnym drewnem. Dzięki temu prosta forma została urozmaicona, a także w ten sposób podkreślono harmonię z otaczającym lasem.

Sam układ funkcjonalny strefy dziennej został dostosowany do wędrówki słońca – jadalnia posiada przeszklenie od strony wschodniej, przez które słońce wpada w godzinach porannych przy śniadaniu, kuchnia i salon, w których spędzamy większość dnia przeszklone są od strony południowej żeby zmaksymalizować ilość dostarczanego światła dziennego oraz gdzie rozciąga się spektakularny widok na jezioro, a strefa wypoczynkowa została dodatkowo przeszklona od strony zachodniej. Strefa nocna, którą stanowią cztery wygodne sypialnie, zlokalizowana została na poddaszu, a każda z nich posiada okno z niesamowitym widokiem.

Zespół projektowy: Marek Kruk, Oliwer Rasztawicki, Paulina Kwiatkowska, Paweł Pacak.

Wizualizacje: DIG Group

Dom-PG 2021-

[info+]

Lokalizacja: Pomorskie, Polska     Data : 2021-     Powierzchnia: 200 m²

Projekt przewiduje rozbudowę i przebudowę istniejącego budynku mieszkalnego jednorodzinnego w zabudowie bliźniaczej oraz budowę garażu podziemnego dwustanowiskowego wraz ze zjazdem na działkę przy ul. Grodzieńskiej w Gdańsku. Lata 30. XX w. przyniosły ze sobą plan budowy osiedla domów robotniczych noszącego nazwę Albert-Forster-Siedlung. Architekt Otto Schröder zaprojektował 34 jednopiętrowe, bliźniacze domy z ogródkami oraz jeden większy budynek, pełniący funkcję przedszkola. Budowę osiedla zakończono w pierwszej połowie lat 40. Założenia projektowe dotyczące istniejącego budynku to przede wszystkim remont oraz konserwacja istniejącej elewacji z zwróceniem szczególnej uwagi na odtworzenie brakujących detali okien. Charakterystyczne elementy takie jak obramowania okienne, okiennice oraz stolarka drzwiowa zostaną wymienione na nowe, dokładnie odtwarzające historyczne. Przebudowa wnętrza istniejącego budynku zakłada zmianę funkcji pomieszczeń bez naruszenia oryginalnego rzutu. Forma i bryła rozbudowy bezpośrednio nawiązuje do istniejącego budynku – jest jego współczesną interpretacją. Kubatura została wycofana w kierunku ogrodu tak, aby nie zaburzać charakteru istniejącej pierzei ulicy Grodzieńskiej. Proponowana rozbudowa jest niejako trójwymiarowym cieniem istniejącego budynku stanowiącym dla niego tło pozwalające na klarowne rozróżnienie tego, co historyczne a co nowoprojektowane. Proporcje elewacji od strony ogrodu, wysokość kalenicy, okapów oraz charakterystyczny kształt i kąty nachylenia dachu są identycznym odwzorowaniem. Projektowane elewacje oraz połacie dachowe pokryte zostaną deskami opalanymi metodą Shou Sugi Ban w kolorze ciemnobrązowym, nawiązującym do okładziny drewnianej na ścianie szczytowej części istniejącej. Projektowane otwory okienne w elewacji frontowej, od strony ulicy, mają te same wymiary, co istniejące, tworząc wspólnie harmonijną całość. Pozostałe otwory okienne, od strony ogrodu, zaprojektowane są większe tak, aby zapewnić odpowiednie doświetlenie, ale z zachowaniem tych samych proporcji co historyczne. Istniejący budynek oraz część rozbudowy zostaną połączone neutralnym łącznikiem z dużym przeszkleniem, pokrytym takimi samymi opalanymi deskami jak część nowoprojektowana. Następnym istotnym elementem projektowym jest odtworzenie historycznego ogrodzenia, które zachowało się na niektórych sąsiadujących działkach i będącym jednym z czynników stanowiących o spójności oryginalnego osiedla. Jest to szczególnie widoczne na archiwalnych zdjęciach.

 

Zespół projektowy: Marek Kruk, Oliwer Rasztawicki, Monika Truskolawska, Tomasz Sroczyński.

Wizualizacje: DigGroup

Dom-MP II 2021-

[info+]

Lokalizacja: Mazowieckie, Polska     Data : 2021-     Powierzchnia: 280 m²

Zatopiony w lesie, parterowy dom projektu zespołu pracowni Kruk Rasztawicki Architekci, o tajemniczej nazwie MP_II, ma w sobie pewien japoński sznyt. Niska, nieco ukryta za drzewami bryła wpisuje się w naturalny krajobraz, częściowo zapraszając go do środka, a miejscami zamykając się, dając bezpieczne schronienie domownikom. Parterowa bryła wpisana jest w plan w kształcie litery L. Jej główny trzon stanowi zwarta część użytkowa, w zlokalizowanej prostopadle strefie zaś architekci umieścili przestronną, otwartą część dzienną, której ogromne przeszklenia pozwalają podziwiać widoki i umożliwiają wyjście na drewniany taras. Taras ten, w pozostałych częściach nieco węższy, okala cały budynek, a jego kształt powtarza wysunięty poza bryłę okap dachu, wsparty w niektórych miejscach regularnie rozstawionymi drewnianymi słupami. To właśnie wielospadowy dach o niskim kącie nachylenia jest głównym bohaterem domu — a na jego szczycie — wąski, wydłużony świetlik ponad korytarzem, powtarzający znany już z rzutu kształt litery L, w dzień doprowadzający promienie słoneczne do wnętrza, a nocą — pozwalający na podziwianie gwiazd. Poprzez cofnięcie bryły względem okapu, wsparcie zadaszenia na drewnianych słupach, użycie wąskich, pionowych drewnianych desek na elewacji i duże przeszklenia zespół projektantów z sopockiej pracowni KRUK RASZTAWICKI ARCHITEKCI dodał bryle pewnej lekkości, mimo pozornej masywności domykającej obiekt z góry piątej elewacji. Całość, choć nowoczesna, korzysta z naturalnych materiałów i tradycyjnych rozwiązań, a przede wszystkim zdaje się ustępować miejsca istniejącym drzewom i nie ingerować zbytnio w otoczenie.

Tekst: Ola Kloc –Architektura& Biznes

 

Zespół projektowy: Marek Kruk, Oliwer Rasztawicki, Monika Truskolawska, Tomasz Sroczyński.

Wizualizacje: DIG Group

Dom JJ 2020-

[info+]

Dom KB 2020-

[info+]

Lokalizacja: Warmińsko Mazurskie, Polska     Data : 2020-     Powierzchnia: 390 m²

Typowym elementem architektury mieszkalnej Warmii i Mazur jest dach rozprzestrzeniający się nad niższymi pomieszczeniami parteru, stosowane materiały, konstrukcje czy elementy wykończeniowe i zdobnicze o charakterystycznym detalu architektonicznym. Regularny rytm dachów o pięknej, ceglastej barwie, osadzone w niepowtarzalnej zieleni pomiędzy jeziorami, to jedna z niewątpliwie najbardziej rozpoznawalnych cech tego krajobrazu.

Poprzez dialog z tradycją zaprojektowano dom w nawiązaniu do zastanych elementów architektury regionu takich jak dach pokryty dachówką ceramiczną o ceglastej barwie, materiał naturalnego drewna na elewacjach oraz budynek na rzucie wydłużonego prostokąta o charakterystycznych proporcjach stodoły. Elementy te stały się punktem wyjściowym w poszukiwaniu rozwiązań kubaturowych i architektonicznych.

Projekt  łączy ze sobą funkcje mieszkalne i gospodarcze. Funkcje te zostały rozdzielone tworząc dwa odrębne budynki zaprojektowane, jako parterowe niepodpiwniczone z poddaszem użytkowym. Parter budynku mieszkalnego to część dzienna, otwarta przestrzeń z widokiem na ogród i linię brzegową jeziora. Dodatkowo bryła budynku wzbogacona jest o podcień ze strefą wypoczynku wraz z uzupełniającym ją basenem. Piętro budynku mieszkalnego zwieńczone zostało otwartą loggią skierowaną na rozprzestrzeniający się krajobraz wielkich jezior. Budynek gospodarczy na poziomie parteru posiada pełne, wykończone tradycyjnymi elementami dekoracyjnymi elewacje z charakterystycznym deskowaniem w naturalnej kolorystyce.

Współczesny charakter budynku podkreślony został poprzez lokalizację dużych przeszkleń w parterze części mieszkalnej, po których otwarciu zanika granica strefy dziennej budynku, tworząc jedną przestrzeń wraz z otaczającym dom, naturalnym zagospodarowaniem terenu.

 

Zespół projektowy: Marek Kruk, Monika Truskolawska, Tomasz Sroczyński.

Wizualizacje: DIG group

Dom MW 2020-

[info+]

Lokalizacja: Kujawsko-Pomorskie, Polska     Data : 2020-     Powierzchnia: 239 m²

Dom jednorodzinny został usytuowany niemal w szczerym polu, wśród łąk i łanów kukurydzy, z linią horyzontu wykończoną ścianą lasu. Ogrom otaczającej dom wolnej przestrzeni znalazł przełożenie na jego formę i rozkład funkcjonalny. Przestronne i wysokie pomieszczenia układają się w logiczne ciągi funkcjonalne, czerpiąc korzyści z ulokowania względem kierunków świata – codziennej wędrówki słońca.

Dom stanowi swoistą scenę dla gry światła i cienia. W związku z całkowitą ekspozycją budynku na działanie słońca zastosowano szereg zabiegów projektowych mających na celu rozproszenie bezpośredniego światła, bądź wprowadzenie i ukierunkowanie go w głąb domu. Ochronę przed ostrym światłem zapewniają duże okapy i głębokie podcienie, nastrojowe światło gwarantują ażury ceglane na przeszkleniach.

Pas świetlików dachowych nad częścią dzienną umożliwia wędrówkę i rozproszenie promieni słonecznych po głębszych częściach i elementach wnętrza. Z kolei duże przeszklenia wprowadzają do pomieszczeń stonowane światło poranne i wieczorne.

Materiały wykończeniowe budynku i ich kolorystyka harmonizują z otoczeniem – na elewacji zastosowano wypaloną piaskową cegłę, na dachu kwadratowe łuski z patynowanej blachy tytanowo-cynkowej.

Zespół projektowy: Marek Kruk, Oliwer Rasztawicki, Marta Zander, Monika Truskolawska, Tomasz Sroczyński.

Wizualizacje: DIG group

Maritex Gdynia 2019-2020

[info+]

Dom MJ 2020-

[info+]

Dom ZT 2019-

[info+]

Lokalizacja: Gdańsk    Data : 2019-    Powierzchnia użytkowa: 200 m²

W latach 20–tych XX wieku na południowo-zachodnim stoku Królewskiego Wzgórza w Parku Jaśkowej Doliny powstało osiedle domów. Zabudowa posiadała jednolity charakter, powstałe budynki jednorodzinne były powieleniem jednego projektu. Na przestrzeni lat poszczególne budynki uległy licznym modyfikacjom – przebudowom, rozbudowom i remontom, co doprowadziło do zatracenia pierwotnej jednolitej struktury zabudowy. Prace projektowe nad domem jednorodzinnym w tej okolicy stanowią współczesną interpretację zastanego stylu zabudowy, będącą odpowiedzią na współczesne trendy architektoniczne, jednocześnie z poszanowaniem kontekstu miejsca i wartości historycznej zabudowy zespołu. Odtworzono uproszczoną pierwotną bryłę domu jednorodzinnego, jednostkę zespołu osiedla. Pozostawiono historyczną ramę w postaci zewnętrznych ścian w kolorze białym, z charakterystycznie zwieńczonymi attykami, która poprzez swoje proporcje i rozplanowanie otworów okiennych w elewacji frontowej, jak i blendy w elewacjach bocznych, bezpośrednio nawiązuje do historycznego budynku, jego proporcji, wysokości i podziałów. Rama ta stanowi sumę charakterystycznych dla pierwotnej zabudowy cech; cech wyselekcjonowanych, ujętych w formę minimalistyczną. W historyczną ramę wstawiono monolityczny budynek mieszkalny wykończony w całości ceramiką. Biała rama została skontrastowana z ceglaną częścią mieszkalną dla uwypuklenia idei projektowej. Zaprojektowany budynek poprzez swoją formę i kubaturę wpisuje się w charakter istniejącej wokół zabudowy i krajobrazu.

Zespół projektowy: Marek Kruk, Oliwer Rasztawicki, Marta Zander, Monika Truskolawska, Tomasz Sroczyński.

Wizualizacje: Wydmy Studio

PSG-B 2011-2019

[info+]

Urząd Miasta Warszawa 2020

[info+]

Lokalizacja: Warszawa, Polska     Data : 2020     Powierzchnia: 7000 m²     Nagroda: 2 nagroda w Konkursie SARP

       Główną ideą projektową dla adaptacji budynku było stworzenie przyjaznej, czytelnej, otwartej, jasnej i zapraszającej przestrzeni zarówno dla pracowników jak i petentów urzędu, odpowiadającej wysokim standardom jakości i trwałości, realizowanej według zasad projektowania uniwersalnego. Podstawowymi założeniami było: zapewnienie prostej i intuicyjnej komunikacji w budynku, poprzez logiczny układ funkcjonalny i zrozumiałe oznakowanie graficzne. Stworzenie czytelnej i funkcjonalnej sali obsługi, umożliwiającej łatwe dotarcie do  informacji, szybką i profesjonalną obsługę, oraz wygodne oczekiwanie stworzenie przyjaznego miejsca pracy poprzez, między innymi, utworzenie wspólnej przestrzeni relaksacyjnej dla pracowników, pomieszczenia socjalne z balkonami i zielenią. Zapewnienie krytych parkingów rowerowych oraz szatni z prysznicami. Zapewnienie  komfortowych warunków powietrza i akustyki. Stworzenie architektury o charakterze dopasowanym do publicznej funkcji budynku zapewnienie dostępności osobom niepełnosprawnym i starszym stosowanie proekologicznych rozwiązań dążących do uzyskania standardu BREEAM very good lub excellent.
Główna komunikacja odbywa się wokół centralnego rdzenia funkcjonalnego mieszczącego windy oraz pomieszczenia kasy i kancelarii. Dookoła trzonu zlokalizowano pierścień głównego holu z poczekalnią, z którego dostępne są promieniście wszystkie stanowiska obsługi klienta oraz sale konferencyjne, toalety i klatki schodowe. Dzięki symetrii i centralności układu komunikacja staje się jasna i intuicyjna dla użytkownika zaraz po wejściu do budynku.

 

Zespół projektowy: Marek Kruk, Filip Kozarski (IPA/ipreferanalog), Adrian Mania (StudioMania), Tomasz Sroczyński.

Wizualizacje: Wydmy Studio.

Pomorska Spółka Gazownictwa 2011-2019

[info+]

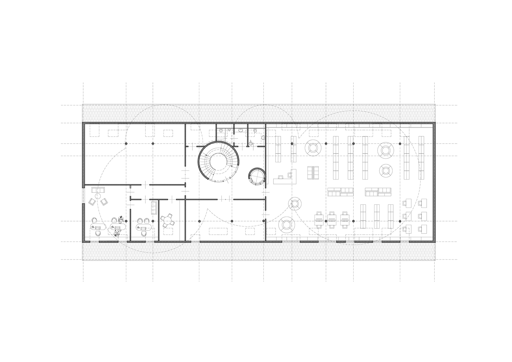
Lokalizacja: Gdańsk, Polska     Data : 2011-2019     Powierzchnia: 3600 m²     Nagroda: 1 nagroda w Konkursie SARP

Podstawowym założeniem dla projektowanego terenu jest próba stworzenia jednolitego i czytelnego znaku przestrzennego siedziby Pomorskiej spółki Gazownictwa. Stanowi on charakterystyczny punkt odniesienia dla reszty terenu bardzo zróżnicowanego estetycznie i funkcjonalnie. Owy klaster zieleni kształtowany jest w kontekście znaczenia, prestiżu, relacji z pracownikami, ma też za zadanie wprowadzić powiew świeżości do otoczenia poprzemysłowego, ma on również na celu wprowadzenie nowej jakości w postrzeganiu firmy zgodnie z ideą zrównoważonego rozwoju i odpowiedzialnego biznesu.

Architekturę nowej siedziby Pomorskiej Spółki Gazownictwa stanowi zlokalizowany w miejscu nieistniejącego już zbiornika na gaz, zwarta okrągła bryła z wewnętrznym atrium.  Bryła budynku z patiem zapewnia naturalne przewietrzanie, zapewnia dobre doświetlenie traktu biurowego oraz tworzy własny wewnętrzny kontekst. Wycięcia w parterze podkreślają główne wejścia do budynku. Duże dwukondygnacyjne otwarcie w wyższej części budynku skierowane jest na panoramę Starego Miasta.

Elewacja poprzecinana lamelami przeciwsłonecznymi zapewnia intymność przy równoczesnym komforcie użytkowania. Nadrzędnym celem było poszukiwanie pasywnych rozwiązań w budynku biurowym opartych na architekturze (forma, funkcja, materiał, konstrukcja). Okrągły kształt budynku zachowuje najmniejszy stosunek elewacji zewnętrznej do powierzchni użytkowej oraz poprawia bilans energetyczny.

 

Zespół projektowy: Marek Kruk, Marzena Wytrykusz,  Współpraca: Interurban, Hago Architekci.

Zdjęcia: Tom Kurek

Dom MP 2019

[info+]

Dom JZ 2019

[info+]

Lokalizacja: Pomorskie, Polska     Data : 2019-     Powierzchnia: 400 m²

Projekt przedstawia 400 metrowy dom przeznaczony dla małżeństwa i co bardzo istotne uwzględnia wizyty dorosłych dzieci i wnuków czyli spełnia funkcję domu wielopokoleniowego. W projekcie dużą wagę przywiązano do kontekstu miejsca , mianowicie 3 hektarowej polany, otoczonej świerkami i sosnami. Miejsce gdzie mógł na niej stanąć dom było oczywiste. Duży nacisk położono na jak największą symbiozę z otoczeniem, nie tylko ze względów estetycznych i funkcjonalnych, ale i ekologicznych. Budowa nie powinna powodować wycinki drzew, które są największą wartością tego miejsca. Nadrzędnym celem było to, aby dom nie zajmował ich miejsca, tylko stworzył z nimi jedność. Jego wnętrze stało się lasem, a las przedłużeniem mieszkania.

Parterowy dom podzielony został na dwie części nocną i dzienną, połączone centralnie ustawioną sienią wejściową. Sercem części dziennej jest duży salon. Dwustronny kominek został osadzony w ścianie dzielącej pokój z jadalnią i kuchnią. W części nocnej znajdują się cztery samodzielne sypialnie, każda z własną łazienką. Z bryłą budynku skontrowano podłużną wiatę garażową, a równolegle do niej, celując w strefę wejściową, wyznaczono ścieżkę, która odbijając się od wejścia, okala cały budynek, pełniąc funkcję tarasu. Kompozycja elewacji wynika wprost z układu funkcjonalnego i otwiera dom na otoczenie. Cechą charakterystyczną są okna na całą wysokość pomieszczenia. W części dziennej zajmują więcej powierzchni niż przeplatające je fragmenty ścian, dzięki czemu naśladują rytmikę leśnych światłocieni. Dzięki oknom ze wszystkich stron i linearnej bryle widać otwartą przestrzeń wnętrza na całej jego długości i szerokości. Po otwarciu okien zatraca się granica pomiędzy lasem, a domem. Jasne wnętrze i kontakt z naturą dodatkowo wzmacniają liczne świetliki umieszczone w więźbie dachowej.

Bliskość z naturą przejawia się nie tylko w wyrazie architektonicznym budynku czy użytych materiałach, lecz także w aspekcie technicznym. Dom zaprojektowano jako ergonomiczny i wysokoenergooszczędny obie połacie dachowe w całości pokryte są panelami fotowoltaicznymi, co jest źródłem prądu i ogrzewania. Woda ze studni oraz przydomowa oczyszczalnia ścieków czyni dom niezależnym od mediów zewnętrznych.

 

Zespół projektowy: Marek Kruk, Marta Zander, Oliwer Rasztawicki, projekt wnętrz: Marta Napiórkowska – Łosin

Wizualizacje: Wydmy Studio

 

Dom AJ 2018-2020

[info+]

Dom DH 2018

[info+]

Lokalizacja: Pojezierze Kaszubskie, Polska     Data : 2018     Powierzchnia: 176,60 m²     Inwestor: Prywatny

Szwajcaria Kaszubska – malowniczy rejon Pojezierza Kaszubskiego z rynnowymi jeziorami, zalesionymi wzgórzami, rozlokowanymi pomiędzy nimi małymi miejscowościami. Szczęśliwie, jest tu jeszcze miejsce na przyszłą zabudowę, która (wraz z jej lokatorami) może czerpać z upajających krajobrazów. Taka sposobność została wykorzystana do projektu przedmiotowego domu.

Typowy w kształcie i formie dla zabudowy tego regionu dom – parterowy, z użytkowym poddaszem, na rzucie prostokąta, przekryty symetrycznym dwuspadowym dachem – ulokowano na wzniesieniu. Budynek osadzono na betonowym tarasie, który na fragmentach delikatnie unosi się ponad terenem. Urozmaicenia prostej bryły stanowią podcienie, które akcentują przeszklenia; z kolei przeszklenia – panoramiczne okna – wchodzą w dialog z otoczeniem, maksymalizują wrażenie jedności z krajobrazem.

Zastosowano minimum szlachetnych materiałów – czarny łupek na dachu, elewację drewnianą z desek i lastryko (szary beton z jasnym kruszywem) na tarasie i podłogach w całym domu. Te same co na elewacji deski stanowią wykończenie wszystkich ścian, drzwi i frontów meblowych. Tę zasadę utrzymano w każdym z pomieszczeń parteru – w kuchni, jadalni i salonie oraz w głównej sypialni i łazience – w celu spotęgowania efektu zatarcia granic między wnętrzem a zewnętrzem.

Budynek będzie w pełni autonomiczny i wysoko energooszczędny – zaprojektowano pompy ciepła, instalację fotowoltaiczną i studnię.

Zespół projektowy: Oliwer Rasztawicki, Marta Zander

Wizualizacje: Filip Chorzelski & Filip Mętlewicz

Dom NM 2018

[info+]

Lokalizacja: Podlaskie, Polska     Data : 2018-     Powierzchnia: 480 m²

Projekt adaptacji, przebudowy i rozbudowy istniejącego budynku z 1910r. Budynek znajduje się w malowniczej wsi w woj. podlaskim. Teren inwestycji leży w strefie ochrony konserwatorskiej. Renowacja elewacji i detalu istniejącego budynku ma na celu przywrócenie mu jego oryginalnego charakteru.

Renowacja elewacji budynku istniejącego wiąże się z: oczyszczeniem, uzupełnieniem, wzmocnieniem strukturalnym cegły, spoin/fugowania, detalu architektonicznego; rekonstrukcją drewnianych okien i drzwi wejściowych; wymianą istn. pokrycia dachowego na dachówkę ceramiczną; wykonaniem nowych opierzeń blacharskich. 

Planowana rozbudowa harmonijnie wpisuje się w istniejący układ ruralistyczny. Zaprojektowano przebudowę i rozbudowę istniejącego budynku z poszanowaniem skali, proporcji i gęstości zastanej zabudowy sąsiedniej. Obiekt składał się będzie z trzech niemal jednakowych pod względem gabarytów i formy brył, zestawionych i połączonych ze sobą poprzez szklany łącznik. Na elewacjach dwóch brył, stanowiących rozbudowę, zastosowano tradycyjne dla tego regionu materiały wykończeniowe i kolorystykę: ściany z cegły pełnej oraz dachówka ceramiczna na dachu – oba materiały w odcieniach szarości i brązu, oraz detale: ceglane gzymsy i cokoły, które nawiązują do detali istniejącego budynku. Niemniej obie te bryły, przy zachowaniu kontekstu miejsca, wpisują się we współczesną estetykę minimalistyczną, tworząc harmonijną całość, podnosząc walory estetyczne inwestycji jak i otoczenia.

Zespół projektowy: Marek Kruk, Oliwer Rasztawicki, Marta Zander, Tomasz Sroczyński.

Wizualizacje: Wydmy Studio

Hotel 2017-

[info+]

Lokalizacja: Łeba, Polska     Data : 2017     Powierzchnia: 2000 m²

Zadanie projektowe obejmuje projekt dwóch obiektów usługowych oraz hotelu zlokalizowanych na nadmorskiej działce w Łebie. Koncepcja przewiduje stworzenie wysokiej jakości obiektów w niewielkiej skali o funkcji usługowej, gastronomicznej i rekreacyjnej, które mają na celu podniesienie poziomu wypoczynku i spędzania wolnego czasu na terenie nadmorskiego wybrzeża zachodniej części Łeby. Głównym założeniem było stworzenie obu obiektów usługowych w formie zabudowy atrialnej z otwartym patio skupiającym wokół wszystkie usługi, tworząc tym samym ogólnodostępny plac z kawiarnianymi stolikami. Zabudowa została otwarta w taki sposób, aby uwzględnić główne kierunki ruchu pieszego w stronę dwóch wyjść na plażę znajdujących się na działce. Kolejnym krokiem w kształtowaniu zabudowy było rozbicie rzutu na mniejsze moduły tak, aby całość wpisała się w gęstą siatkę istniejących drzew i nie przysłania wydmy oddzielającej działkę od plaży, co stanowi niewątpliwy atut działki. Poza usługami przewidziano stworzenie ogólnodostępnych placów przeznaczonych do rekreacji i wypoczynku. Dojścia i dojazdy zaprojektowano, wykorzystując istniejące ciągi pieszo-jezdne wyłożone nową nawierzchnią z półprzeziernych płyt oraz nowe ścieżki piesze wpisujące się w naturalny, zalesiony klimat działki. Jednym z głównych priorytetów było stworzenie formy nowoczesnej nawiązującej do tradycyjnej architektury regionu. Kondygnacja przyziemia nawiązująca do konstrukcji ryglowej oraz kondygnacja piętra wykończona czarnym drewnem w układzie pionowym odnoszą się do typowej architektury regionalnej. Nie są to jednak nawiązania bezpośrednie, język architektoniczny jest nowoczesną interpretacją formy tradycyjnej bez bezpośredniego naśladownictwa. Nowoczesne, wielkoformatowe rozwierne przeszklenia otwierają widoki na otaczającą zieleń i zacierają granicę pomiędzy wnętrzem a otoczeniem, dając wrażenie ciągłego przebywania w nadmorskiej naturze. W projekcie zastosowano szlachetne materiały takie, jak cegła o jasnym wybarwieniu oraz drewno naturalne, które doskonale wpisują się w otaczającą przyrodę.

Zespół projektowy: Marek Kruk,  Jakub Piórkowski (PB Studio).

SGH 2017

[info+]

Lokalizacja: Warszawa, Polska,      Data : 2017     Powierzchnia: 6267 m²

Projekt przedstawia budynek dydaktyczny warszawskiego SGH. Projektowany obiekt jest współczesną odpowiedzią na charakterystyczną i zdefiniowaną przed wojną architekturę podstawowych budynków SGH przez Jana Koszczyca-Witkiewicza.   Najbardziej widocznym tego przejawem jest „modułowy” system kształtowania elewacji, w którym każdy moduł jest polem doświetlenia pomieszczeń dydaktycznych; skomponowany w konkretny sposób. Przy czym różnice w kompozycji elewacji istniejącego budynku głównego SGH i budynku projektowanego polegają na rezygnacji z „wertykalnego” układu elewacji oraz poziomych pasów attyk, co powoduje bardziej współczesny i uniwersalny charakter w odbiorze proponowanej architektury. Drugim, ważnym odniesieniem do architektury historycznej w postaci charakterystycznej kopuły, schodkowego ostrosłupa świetlika budynku głównego SGH rozpiętego nad holem głównym. Proponuje się podobny w kształcie świetlik jednak na zasadzie „przestrzennego negatywu” tego elementu, który w wypadku realizacji zacznie funkcjonować nie, jako element dodany do bryły zasadniczej, ale od niej „odjęty”. Nie jest to wyłącznie gra intelektualna formami przestrzennymi, tak kreowana kubatura ma ogromny wpływ na charakter przestrzeni wewnętrznej obiektów oraz rozwiązania wnętrz. W elewacjach poprzez nieznaczne wysunięcie zaakcentowano strefy funkcjonalne (kubaturowe) oraz centralnej strefy doświetlenia przestrzeni wspólnej; kompozycja elewacji bocznych odtwarza ogólną zasadę przekroju budynku zasadniczego. Zieleń we wnętrzu budynku to bardzo istotny element organizowania przestrzeni publicznych. Niemal całe atrium, taras oraz wszystkie przestrzenie wspólne są „wyścielone” zielenią. Budynek SGH znajduje się na granicy „zielonych płuc Warszawy”, czyli Pól Mokotowskich oraz mocno zurbanizowanej tkanki miejskiej. Beton i szkło nie są naturalnym środowiskiem dla człowieka, dlatego wprowadzenie dużej ilości odpowiednich gatunków roślin wpłynie pozytywnie na samopoczucie użytkowników. Budynek dzięki swojej formie, a w szczególności dzięki tarasowemu atrium jest bardzo dobrze doświetlony biorąc pod uwagę plan miejscowy i zadany program. Do wnętrza dociera dużo światła naturalnego, dzięki czemu wszystkie przestrzenie użytkowe w całym budynku mają dostęp światła dziennego. Konkurs Organizowany przez Stowarzyszenie Architektów RP.

Zespół projektowy: Marek Kruk, Katarzyna Kwiatkowska, Adrian Mania, Tomasz Sroczyński.

Dom OS 2017-

[info+]

Muzeum Żołnierzy Wyklętych 2016-2017

[info+]

Lokalizacja: Warszawa, Polska     Data : 2016-2017     Powierzchnia: 21073,00 m²     Inwestor: Ministerstwo Sprawiedliwości

Głównym założeniem projektu jest zachowanie genius loci, swoistego ducha miejsca, przy jednoczesnym wprowadzeniu nowych funkcji i otwarciu całości koncepcji Muzeum na miasto. Historyczny układ urbanistyczny oraz budynki obecnego Aresztu Śledczego, jako świadkowie ponurej i brutalnej historii, zostały uznane za najbardziej istotne w całym założeniu projektowym i jako takie postanowiono je wyeksponować, nie wprowadzając konkurencji w postaci dodatkowych kubatur.
Przedmiotowy teren został uporządkowany i oczyszczony z nieprzedstawiających wartości historycznej obiektów, zespołów placów spacerowych, a także współczesnych ogrodzeń i bram więziennych na terenie. Zachowanym budynkom przywrócono historyczną bryłę i formę architektoniczną, a nowe funkcje Centrum Edukacyjno-Konferencyjnego ukryto pod ziemią. Zabieg ten umożliwił efektywne powiązanie funkcjonalne całego zespołu Muzeum oraz uzyskanie wolnej przestrzeni pomiędzy budynkami, pozwalającej stworzyć nastrojowe dziedzińce, połączone z systemem miejskich przestrzeni publicznych. Dzięki takiemu rozwiązaniu, obiekt stałby się w przyszłości miejscem tętniącym życiem, przestrzenią, tworzącą ramy dla organizacji różnych wydarzeń, uroczystości, koncertów, będzie pełnił rolę kulturotwórczą i edukacyjną.
Zaprojektowano 4 place, każdy w indywidualnym charakterze, w celu wywołania odmiennych odczuć u zwiedzających. Uporządkowany i regularny Plac Apelowy stanowi idealną posadzkę przestrzeni przeznaczonej do organizacji wydarzeń kulturalnych. Plac Spacerowy wprowadza do założenia projektowego zieleń, ma za zadanie zapewnić zwiedzającym spokojną przestrzeń refleksji, otuchy i wytchnienia. Zastosowanie na Placu Wodnym płytkiej, rozległej niecki, wypełnionej wodą ma na celu pogłębić wrażenie spokoju i skupienia. Odbijające się w tafli wody budynki Muzeum z zaślepionymi oknami, mają spotęgować obrazy, opowiadające o dawnym przeznaczeniu tego miejsca. Nawierzchnia Placu Dramatycznego została zaprojektowana jako nierówna, rozedrgana, zaburzona siatka konstrukcyjna, wypełniona ceglanym gruzem. Kompozycja ta składa się nacałość o dramatycznym charakterze, symbolizuje emocje, związane z dramatem dawnego więzienia.

Zespół Projektowy: Filip Kozarski, Marek Kruk, Adrian Mania, Oliwer Rasztawicki, Marzena Wytrykusz, Marta Zander

Garaże Elektrowózków 2016

[info+]

Lokalizacja: Gdańsk, Polska     Data : 2016     Powierzchnia: 3000 m²

Przedmiotem opracowania był budynek Garaży Elektrowózków, który jest częścią dawnej Stoczni Schichaua i pierwotnie został zaprojektowany jako obiekt socjalno-magazynowy. Pierwsze piętro zajmowały szatnie z umywalniami, parter magazyny i warsztaty, w późniejszych czasach między innymi warsztat Lecha Wałęsy. Obiekt pochodzi z lat dwudziestych dziewiętnastego wieku i wpisany do rejestru zabytków. Ściana zewnętrzna posiada charakterystyczną konstrukcję stalową wypełnioną cegłą ceramiczną. W budynku wydzielonych zostało 11 odrębnie działających lokali gastronomicznych, biorąc pod uwagę zwiększenie wartości użytkowej budynku i uzyskanie odpowiedniego komfortu w celu spełnienia wymagań postawionych przez nową gastronomiczną funkcję budynku. Priorytetem było zachowanie w jak największym stopniu charakteru i wyrazu architektonicznego modernizowanego obiektu, a w szczególności elewacji i konstrukcji. Modernizacja budynku wiązała się z przystosowaniem istniejącego obiektu do nowych wymagań, przeciwpożarowych, sanitarnych oraz obowiązującego prawa budowlanego w celu spełniania innych niż dotąd funkcji użytkowych. Ze względu na pierwotne przeznaczenie tzn. garaże elektrowozów, na parterze budynku znajdują się wielkogabarytowe bramy wjazdowe, które zostały wykorzystane jako reprezentacyjne wejścia do lokali. Nowe wejścia zlokalizowane zostały w istniejącej siatce stalowej konstrukcji ścian i zaplanowane jako zupełnie nowe minimalistyczne bramy w kontraście do bram istniejących. Ten zabieg miał na celu szczere i nieinwazyjne wykonanie zmian w elewacji z wyraźnym zaznaczeniem, które wejścia do budynku zostały wykonane w późniejszym okresie niż planowana przebudowa budynku. Elewację budynku wraz z wszystkimi przebarwieniami pozostawiono w niezmienionym charakterze. Ściany jedynie oczyszczone za pomocą pary wodnej pod ciśnieniem tak, aby nie usunąć istniejących naleciałości oraz nawarstwionych przez lata powłok malarskich. Przed wejściami do klatek schodowych zaprojektowano zadaszenia w postaci stalowych blach na całą wysokość elewacji, spełniające one funkcję miejsca dla identyfikacji i reklam lokali z 1 piętra, w postaci wycięcia w blasze niezbędnych logotypów. W celu ujednolicenia reklam lokali sporządzona została wspólna pod charakterem, kolorystyką i wielkością identyfikacja dla całości założenia.

Zespół projektowy: Marek Kruk, Marzena Wytrykusz,  Michał Kulczycki.

Akademia Morska w Gdyni 2016

[info+]

Oranżadziarnia Iwkowa 2014

[info+]

Lokalizacja: Iwkowa, Polska     Data : 2014     Powierzchnia: 1350 m²

Zadaniem konkursowym było stworzenie pijalni oranżady z funkcjami uzupełniającymi dla gminy Iwkowa, obiektu harmonijnie wpisującego się w lokalną zabudowę i nawiązującego do tradycji regionalnego budownictwa, jak i współczesnego, odpowiadającemu czasom, w których będzie realizowany. Oranżadziarnia-z jednej strony pijalnia gazowanego napoju pozytywnie kojarzonego z czasami dzieciństwa, z drugiej strony, budynek łączący funkcję kulturalną, edukacyjną i społeczną, będący jednocześnie wizytówką gminy. Odpowiadając na zadanie konkursowe, zaprojektowano budynek, który będzie spełniał zadane kryteria zarówno pod względem ideowym, jak i w wyrazie architektonicznym. Główną ideą projektu była interpretacja oranżadziarni jako nazwy i głównej funkcji bezpośrednio w formie budynku. Stąd kondygnacja parteru w formie zupełnie lekkich przeszklonych okręgów tworzących przestrzenne bąble zamykające poszczególne funkcje niczym buzujące cząsteczki dwutlenku węgla w butelce gazowanego napoju. Kolejnym założeniem było zestawienie lekkiego parteru z masywną bryłą stromego dwupołaciowego dachu z głębokim okapem. Dzięki temu zabiegowi, bryła nie tylko zyskuje mocną i wyrazistą formę, ale również dodatkową zadaszoną przestrzeń w kondygnacji parteru umożliwiającą rozszerzenie usługowej części budynku. Projektowana forma artykułująca kubaturę dachu celowo staje w opozycji do typowych bezokapowych brył wielokrotnie powielanych w projektach architektury ruralistycznej. Zastosowane materiały elewacyjne są bezpośrednim nawiązaniem do tradycyjnej regionalnej architektury ze szczególnym uwzględnieniem kościoła Nawiedzenia Najświętszej Marii Panny.

Zespół projektowy: Marek Kruk, Marzena Wytrykusz,  Adrian Mania (Studiomania), Jakub Piórkowski (PB Studio).

Gdyńska Szkoła Filmowa 2010

[info+]

Lokalizacja: Gdynia, Polska     Data : 2010     Powierzchnia: 3500 m²     Nagroda: Wyróżnienie w Konkursie SARP

Wiodącą ideą prezentowanej koncepcji jest odwrócenie tradycyjnego sposobu myślenia o elementach kształtujących przestrzeń miejską. Zazwyczaj plac jest głównie definiowany przez architekturę tworzących ją pierzei.  W prezentowanej pracy to założenia przestrzenne placu mają kształtować architekturę obiektu ,który jest przedmiotem koncepcji. Nietrudno, bowiem zauważyć, że pozostałe pierzeje placu są silnie i w zasadzie ostatecznie zdefiniowane poprzez charakter ulicy Armii Krajowej z hotelem Gdynia od północy, fasadę Teatru Muzycznego od wschodu, zabudowę zachodniej pierzei placu oraz zieleń i Kamienną Górę od południa. Konsekwencją takiego sposobu myślenia o placu jest „rozciągnięcie” jego płaszczyzny na …. dach projektowanego budynku Gdyńskiej Szkoły Filmowej w taki sposób, że odbierany będzie w przestrzeni jak odgięty narożnik kartki.  Nie jest to jednak wyłącznie efekt swoistej gry intelektualnej. Takie podejście ma również swoje konsekwencje praktyczne i przestrzenne. Najwyższy punkt narożnika osiąga dopuszczalną wysokość ponad poziom terenu jednak opadająca krawędź dachu do poziomu placu odsłania w dużej części zachodnią pierzeję placu, a ponadto dach projektowanego obiektu proponuje się wykorzystać jako plenerową widownię skierowaną na istniejący Plac Grunwaldzki i charakterystyczną muszlę koncertową.  W związku z tym dach przybiera formę stopni widowni.  Tak zdefiniowana przestrzeń Placu Grunwaldzkiego powinna go uaktywnić i stać się pretekstem do jego wykorzystania w czasie imprez, które mają już w Gdyni pewną tradycję (Festiwal Filmów Fabularnych czy plenerowe spektakle Teatru Miejskiego).  Funkcjonowanie stałej  widowni może być też okazją do organizowania cyklicznych pokazów filmowych czy nawet transmisji sportowych, koncertach muzycznych i występach artystycznych na żywo. Biorąc pod uwagę zadany program i potrzebę wysokich pomieszczeń z możliwością wpuszczenia poprzez dach światła dziennego, przyjęty kształt w całości spełnia założenia. Dzięki zgrabnemu podziałowi funkcji w budynku uniknięto przemieszania się funkcji sal kinowych ,fundacji, czy szkoły filmowej. Budynek w swojej formie zagiętego placu podkreśla otaczającą go architekturę nie przytłaczając kontekstu, w którym się znajduje. Dzięki swojej delikatności stworzył by  charakterystyczną formę w Gdyńskiej architekturze tworząc zamkniętą przestrzeń, która stała by się prestiżową uczelnią o niepowtarzalnym charakterze.

Zespół projektowy: Marek Kruk, Marzena Wytrykusz, Andrzej Gołębiewski (Hago Architekci).

Dom WM 2012

[info+]

KontenerArt 2010

[info+]

Lokalizacja: Poznań, Polska     Data : 2010     Powierzchnia: 1500 m²

Projektowanie bez kontekstu wymaga wykorzystania narzędzi bezpośrednio działających na lokalne środowisko. Architektura kontenerowa poprzez swą specyfikę jest obca, wyróżniająca się w tkance miejskiej. Nadrzędnym celem było stworzenie wizji przekształceń jakie obiekt pozostawi po sobie. Centrum sztuki kontenerart zaprojektowane zostało w formie regularnej, kompaktowej struktury. Forma ta jest uniwersalna, przez co stosunkowo łatwo wpasować ją na każdy typ działki w dowolnym środowisku. Obiekt ma dwa oblicza: zamknięta forma, ta budzi ciekawość, umożliwia zorganizowanie wydarzeń wymagających wyznaczenia fizycznych ram oraz odsłonięta, która  staje się miejską, żywą przestrzenią , koresponduje z otoczeniem. Aby umożliwić swobodny przepływ użytkowników zaprojektowano wolne przestrzenie z każdej ze stron, każda z nich może pełnić funkcję wejścia głównego. W projektowanym obiekcie na parterze zlokalizowane zostały funkcje generujące największy ruch i budzące największe zainteresowanie. Sercem, centrum jest przestrzeń atrium, pełniąca funkcję głównej przestrzeni wystawowo – koncertowej. Jest miejscem przepływu i kumulacji energii, dookoła atrium zlokalizowano komplementarne funkcje , takie jak: klubokawiarnia z tarasem, galeria stanowiąca również foyer dla wyżej zlokalizowanych pomieszczeń pracowni projektowych, punkt informacyjny i toalety. Ważnym elementem centrum jest scena będąca integralną częścią jednej z elewacji, pozwala na wiele sposobów aranżacji przestrzeni koncertowej oraz w zależności od charakteru widowiska, lokowanie widowni wewnątrz lub na zewnątrz budynku. Budynek został zaprojektowany przy użyciu jednostek kontenerowych, kontenerów morskich 20 i 40 stopowych

Zespół projektowy: Marek Kruk, Marzena Wytrykusz,  Agnieszka Jurecka, współpraca: Interurban.

Gafako Gdynia 2010-2011

[info+]